
Anbau Laborgebäude
Anbau eines Laborgebäudes für einen chemischen Betrieb
Bauherr: Oemeta, chemische Werke GmbH
Bauort: Uetersen
Planungszeit: 2025
Baukosten: 4,2 Mio € nt
Leistungsphasen: 1-3



Projektinformationen:
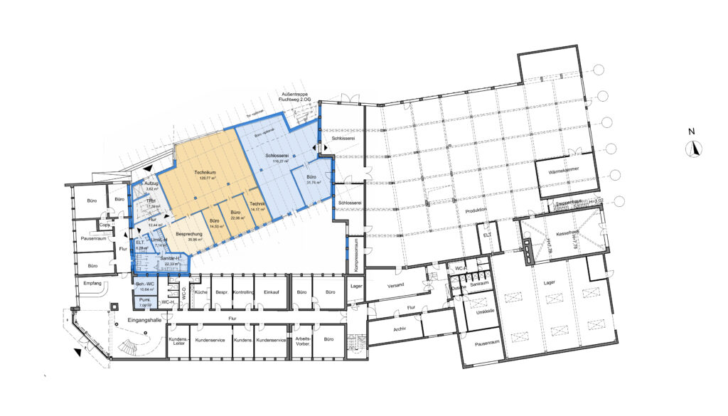
Aufgabe war es, durch den Anbau eines weiteren Bauteils, die Laborflächen der Oemeta zu erweitern und neu zu ordnen.
Das beengte Grundstück stellte eine besondere Schwierigkeit dar, die am Ende zu einer nachhaltigen Nutzung des Gesamtkomplexes führte.
Neben den Laborflächen wurden zusätzl. Flächen für Verwaltung und Werkstätten geschaffen.
Die Fluchtwege sowie der weitere Brandschutz konnten neu konzeptioniert werden.
Die barrierefreie Nutzung wird durch die Anordnung eines zusätzlichen Treppenhauses mit Fahrstuhl jetzt auch im Bestand in weiten Teilen möglich.
Damit wurden Synergien aufgezeigt, die zukünftig notwendige Modernisierungen des Bestandes vorwegnehmen.
Weitere Aspekte: